Trilocale in vendita

Trento, Viale Verona - Clarina
€ 380.000
3 locali 3 locali
78 Mq 78 Mq
1 bagno 1 bagno

Trilocale in vendita

Trento, Viale Verona - Clarina

Descrizione annuncio

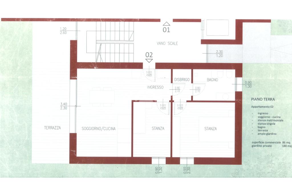
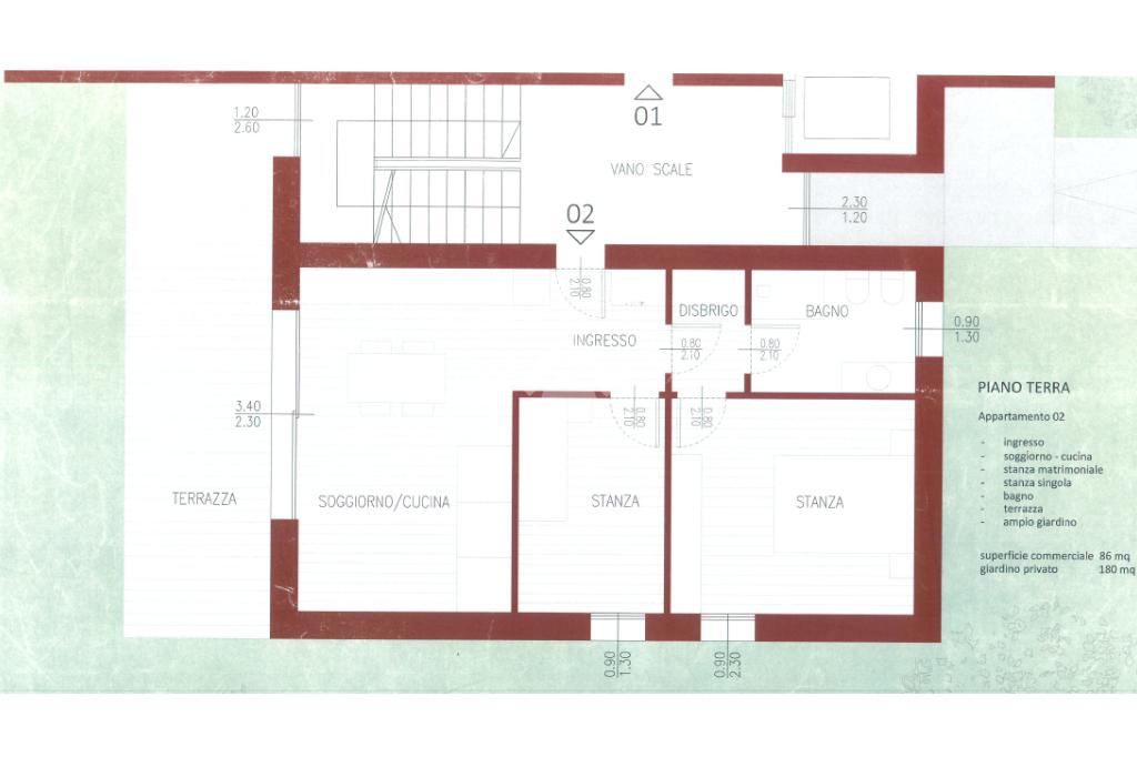
TRENTO - CLARINA proponiamo in a vendita ampio trilocale di nuova costruzione (2025).

Situato al piano terra, l'immobile si estende su una superficie di 78 mq e offre un giardino privato, ideale per momenti di relax all'aperto.

L'appartamento è composto da tre locali, tra cui due camere da letto e un soggiorno con cucina in open-space. E' presente un ampio e luminoso bagno finestrato.

Completano la proprietà un box auto e un posto auto esterno aquistabili separatamente.

L'edificio è dotato di ascensore e l'appartamento dispone di impianto di raffreddamento a pavimento, per un ambiente sempre piacevole.

Questa soluzione abitativa rappresenta un'opportunità per chi cerca una residenza moderna e ben collegata, in una zona tranquilla e ben servita.

Per ulteriori informazioni contattateci in agenzia ai seguenti recapiti:
0461.917456
tncs1

Seguiteci sui nostri canali social, sarete così aggiornati sulle nostre proposte di vendita e di locazione!

Facebook: Agenzia Tecnocasa Trento

Instagram: @tecnocasatrentouno

.

Mostra tutto

Nelle vicinanze

Trasporto pubblico Trasporto pubblico
stazione di Trento Santa Chiara
stazione di Trento Santa Chiara
560 m
stazione di Trento San Bartolameo
stazione di Trento San Bartolameo
920 m
Gramsci / Einaudi
Gramsci / Einaudi
180 m
Verona / Einaudi
Verona / Einaudi
190 m
Trento FTM
Trento FTM
2,3 Km
Ricariche auto elettriche Ricariche auto elettriche
Cassa di Trento largo medaglie d'oro | Neogy
560 m
Supermercato Poli Trento | Neogy
810 m
MUSE | Neogy
1,3 Km
Evway Parcheggio Stazione FTM - Ferrovie Trento Marilleva
2,2 Km
CASSA RURALE Povo | NEOGY
2,4 Km
Scuole Scuole
Scuola Primaria "Nicolodi"
180 m
Centro Formazione Professionale - UPT Sede di Trento
260 m
Scuola elementare Clarina
310 m
Scuola Primaria Domenico Savio
540 m
Ist Speciale CCIAA
590 m
Farmacia Farmacia
Farmacia "San Bartolameo"
130 m
Farmacia "Bolghera"
540 m
Farmacia Comunale
590 m
Farmacia Clarina
650 m
Igea
730 m
Ospedali Ospedali
Guardia Medica
420 m
Santa Chiara
450 m
APSS Villa Igea
830 m
APSS Banca del Sangue
830 m
Casa di Cura "Villa Bianca"
920 m
Supermercati Supermercati
EuroSpar
210 m
Eurodespar
230 m
Margherita Conad
350 m
Supermercato Poli di Largo medaglie d'oro
530 m
Conad
540 m
Negozi Negozi
Frutta e Verdura Castellan
150 m
La Veruska
170 m
Oviesse
240 m
Ianes
300 m
Merceria Adriana
470 m
Bar Bar
Melody 2.0
170 m
Bar
170 m
Green Bar
310 m
Bar Cadorin
330 m
La Tana del Ghiro
400 m
Ristoranti Ristoranti
Blue Sax
230 m
Pizza Planet
310 m
Ristorante Loto S.r.l.
320 m
Filippone
480 m
Aroma
640 m
Mostra tutto

Caratteristiche

Rif.:
61183964
Piano:
Terra di 3 con ascensore
Totale piani:
3
Box:
1
Posti auto:
1
Camere da letto:
2
Mostra tutto
Prezzo Prezzo
€ 380.000
Prezzo box Prezzo box
€ 40.000
Rata mutuo Rata mutuo
€ 1.775 / mese
Spese annue Spese annue
€ 0
Proponi il tuo prezzoProponi il tuo prezzo

Classe Energetica

A4
A4
A4
A4
A4
A4
A4
A4
A4
EP invernale del fabbricato:
EP estiva del fabbricato:
Anno di costruzione:
2025
Riscaldamento:
Centralizzato
Tipo impianto:
A pavimento
Tipo alimentazione:
Pannelli

Ti interessa visionare l'immobile?

Fissa un appuntamento  Fissa un appuntamento

Richiedi informazioni

Clicca su Leggi per aprire l'informativa
* Questi campi sono obbligatori

Calcola il tuo mutuo

Semplice e senza impegno
Anticipo

( % )
Mutuo

( % )

pochi semplici passi

inserisci i tuoi dati
Questionario completato
Grazie per aver richiesto un appuntamento senza impegno con un nostro Consulente del Credito e Assicurativo.

Hai inserito correttamente tutti i dati necessari e a breve riceverai una e-mail con un link da convalidare per inviare i tuoi dati.
Affiliato
Studio Trento Uno Srl
Via Bolghera, 33 38122 Trento (TN)

Il nostro staff


  • Antonio Rossi
    Affiliato

  • Samuele Nocente
    Collaboratore
Via Bolghera, 33 38122 Trento (TN)
Zona: Trento Sud - Bolghera - Clarina
Mostra su mappa
Orari: Dal Lunedì al Venerdi : dalle 8:30 alle 13:00 e dalle 15:00 alle 19:30 Sabato: dalle 9:00 alle 13:00
Affiliato
Studio Trento Uno Srl
Via Bolghera, 33 38122 Trento (TN)

2026 Tecnocasa Franchising S.p.A. - P. IVA 08365160152 - Via Monte Bianco 60/A 20089 Rozzano (MI). Ogni agenzia ha un proprio titolare ed è autonoma. Privacy policy | Policy utilizzo | Cookie policy