Bilocale in vendita

Trento, Via Romano Guardini - Solteri - Cervara
€ 170.000
2 locali 2 locali
56 Mq 56 Mq
1 bagno 1 bagno

Bilocale in vendita

Trento, Via Romano Guardini - Solteri - Cervara

Descrizione annuncio

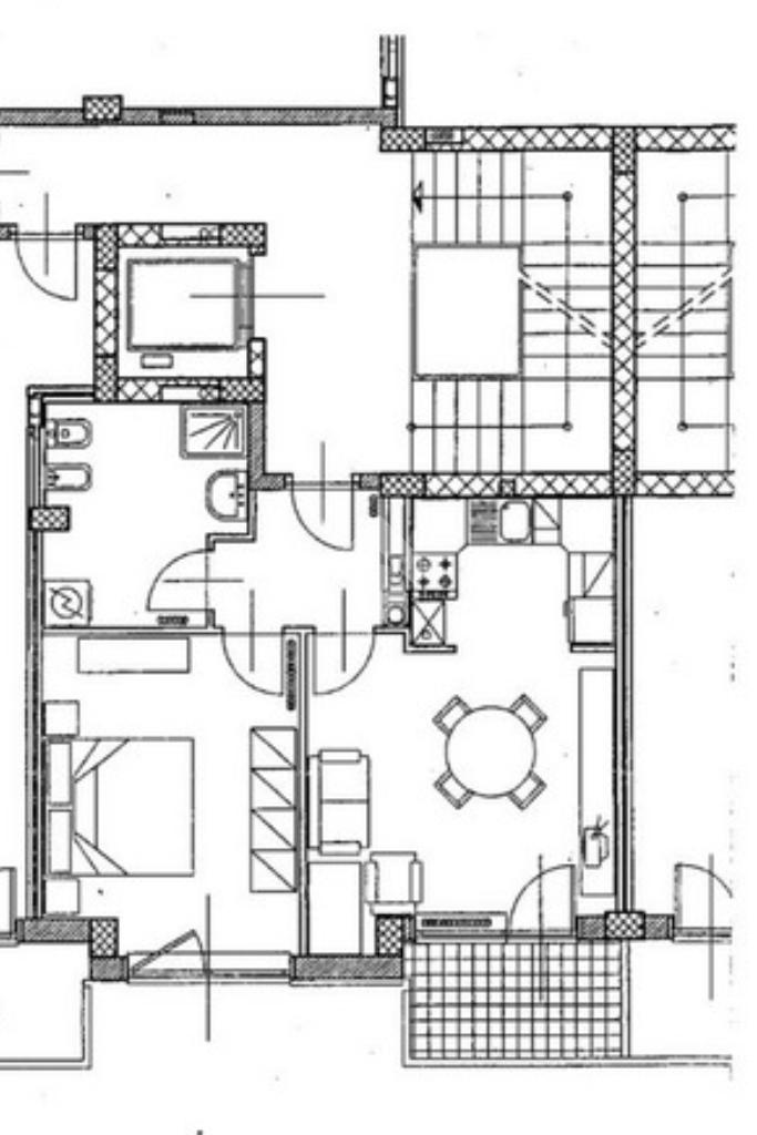
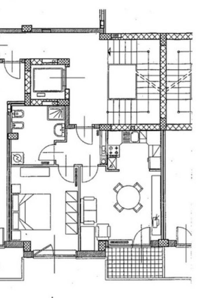
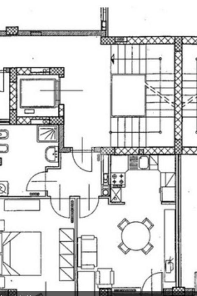
SOLTERI - TRENTO NORD si propone in vendita un accogliente appartamento di 56 mq.

Situato al terzo piano di un edificio dotato di ascensore, L'appartamento si compone di due locali ben distribuiti: una luminosa camera da letto, un soggiorno e un bagno cieco con doccia.

Un balcone offre uno spazio esterno privato, ideale per momenti di relax.

La proprietà include anche un posto auto. Costruito nel 1997,l'immobile esternamente è stato ristrutturato nel 2023.

Questa soluzione abitativa rappresenta un'ottima opportunità di investimento per chi cerca una residenza pratica e ben collegata nel comune di Trento.

Attualmente locato al canone di 700 euro mensili.

Per ulteriori informazioni contattateci in agenzia ai seguenti recapiti:
0461.917456
tncs1

Seguiteci sui nostri canali social, sarete così aggiornati sulle nostre proposte di vendita e di locazione!

Facebook: Agenzia Tecnocasa Trento

Instagram: @tecnocasatrentouno

.

Mostra tutto

Nelle vicinanze

Trasporto pubblico Trasporto pubblico
Trento FTM
Trento FTM
1,9 Km
stazione di Gardolo
stazione di Gardolo
2,1 Km
Guardini / Gilli
Guardini / Gilli
30 m
Guardini / "Centochiavi"
Guardini / "Centochiavi"
80 m
Trento Nord - Zona Commerciale
Trento Nord - Zona Commerciale
500 m
Ricariche auto elettriche Ricariche auto elettriche
Evway Top Center
220 m
Area di Servizio Delta Energy
490 m
Ionity Trento c/o Distributore Eni
810 m
LIDL Trento
900 m
Evway Parcheggio Stazione FTM - Ferrovie Trento Marilleva
2,0 Km
Scuole Scuole
Istituto d'Arte Vittoria
190 m
Scuola Primaria Aldo Gorfer
480 m
Scuola Primaria R. Zandonai
1,0 Km
Scuola Primaria Aldo Schmid
1,1 Km
Scuola Secondaria di Primo Grado "S. Pedrolli"
1,4 Km
Farmacia Farmacia
Farmacia ai Solteri
90 m
Farmacia
910 m
La farmacia di Roncafort
1,5 Km
Farmacia San Lorenzo
1,7 Km
Farmacia di Gardolo
1,8 Km
Supermercati Supermercati
Mio Negozio di Hu Ling
80 m
EuroSpin
290 m
C+C
300 m
MD
340 m
Supermercato PAM
350 m
Negozi Negozi
Negozi
120 m
Sorelle Ramonda
150 m
Inferno
160 m
Dinosauro abbigliamento
170 m
Alternativa
170 m
Bar Bar
Caffè Onda
110 m
Bar Smile
160 m
Top Bar
210 m
Bar
210 m
Pappami SRL
220 m
Ristoranti Ristoranti
Ciao
230 m
Tartufo
240 m
Nord Cafè
330 m
Lucaffè
360 m
VeggyDays
380 m
Mostra tutto

Caratteristiche

Rif.:
61118564
Piano:
3 di 6 con ascensore (Piano medio)
Posti auto:
1
Balconi:
1
Camere da letto:
1
Arredamento:
Parziale
Mostra tutto
Prezzo Prezzo
€ 170.000
Rata mutuo Rata mutuo
€ 786 / mese
Spese annue Spese annue
€ 600
Proponi il tuo prezzoProponi il tuo prezzo

Classe Energetica

D
D
D
D
D
D
D
D
D
EP invernale del fabbricato:
EP estiva del fabbricato:
Anno di costruzione:
1997
Riscaldamento:
Autonomo
Tipo impianto:
A radiatori
Tipo alimentazione:
Metano

Ti interessa visionare l'immobile?

Fissa un appuntamento  Fissa un appuntamento

Richiedi informazioni

* Questi campi sono obbligatori

Calcola il tuo mutuo

Semplice e senza impegno
Anticipo

( % )
Mutuo

( % )

pochi semplici passi

inserisci i tuoi dati
Questionario completato
Grazie per aver richiesto un appuntamento senza impegno con un nostro Consulente del Credito e Assicurativo.

Hai inserito correttamente tutti i dati necessari e a breve riceverai una e-mail con un link da convalidare per inviare i tuoi dati.
Affiliato
Studio Trento Uno Srl
Via Bolghera, 33 38122 Trento (TN)

Il nostro staff


  • Antonio Rossi
    Affiliato

  • Samuele Nocente
    Collaboratore

  • Simone Zortea
    Collaboratore
Via Bolghera, 33 38122 Trento (TN)
Zona: Trento Sud - Bolghera - Clarina
Mostra su mappa
Orari: Dal Lunedì al Venerdi : dalle 8:30 alle 13:00 e dalle 15:00 alle 19:30 Sabato: dalle 9:00 alle 13:00
Affiliato
Studio Trento Uno Srl
Via Bolghera, 33 38122 Trento (TN)

2025 Tecnocasa Franchising S.p.A. - P. IVA 08365160152 - Via Monte Bianco 60/A 20089 Rozzano (MI). Ogni agenzia ha un proprio titolare ed è autonoma. Privacy policy | Policy utilizzo | Cookie policy